鄭州杰凱源頭不銹鋼螺旋式提升機專業(yè)生產廠家,可根據用戶免費出圖,量身打造適合客戶現場要求的適用不銹鋼螺旋式提升機,整機設計合理,運行平穩(wěn),可設計為調速和無人值守,價格合理,歡迎新老客戶來廠考察垂詢。

1、工作原理:
不銹鋼螺旋式提升機是靠電機產生動力,帶動擺線減速機傳動到螺旋器,是一種利用螺旋旋轉使物料向前擠壓,同時使物料產生向前的推動,螺旋上料機從進料口進料經螺旋器強制性使物料輸送到出料口,價格美麗!
2、適用范圍:
2.1、適用與將物料提高到一定高度的情況下使用,例如與注塑機、混合機、定量包裝機、定量包裝秤等配套使用。
2.2、適宜使用的物料:干散性粉狀物料(如淀粉、面粉、添加劑、農藥、獸藥等);不怕破損的小顆粒物料(如:pvc顆粒、雞精、白糖、味精、小雜糧等)

2.3、不適宜使用的物料:超細粉、不允許有破損的小顆粒、有較高含水量及粘性的物料
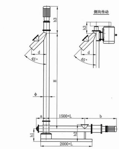
3、不銹鋼螺旋式提升機可選傳動方式:
3.1、皮帶減速
3.2、鏈條減速
3.3、減速機減速
4、可選材質:碳鋼、201不銹鋼、304不銹鋼、316不銹鋼。
說明:不同材質是針對不同使用現場及物料特性而選擇的,一般腐蝕性較強的選擇316,食品級的選擇304不銹鋼,沒什么腐蝕性的選擇201不銹鋼??筛鶕脩糇陨淼臈l件進行選擇,價格優(yōu)惠。

5、不銹鋼螺旋式提升機技術參數(通用型):
上料高度:1600mm (特殊要求可定制)
上料速度:1000-2000kg/h
電機功率:1.1kw
振動電機功率:0.15kw
螺旋管徑:∮114mm、(∮159mm、∮213mm、∮273mm 說明:不同的管徑是針對不同的輸送量進行配套選擇的)
減速方式:皮帶減速
料倉容積:120L
產品綜述:不銹鋼螺旋式提升機適用物料類型為小顆?;蛘叻勰╊愇锪希嵘叨纫话阍?5米以內較為合適,傾斜角度在60°以內,可根據不同現場要求加工為不同的傳動方式,價格優(yōu)惠,同時可根據用戶要求進行個性化定制。




客服1